Baugisar

Vermittlungen

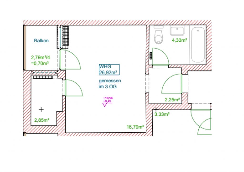
Eigentumswohnung zu verkaufen

Die Wohnung ist vermietet.

Straße: Am Judenfeld 18, 5. OG

Größe: 1 Zimmer-Appartement, 27,00 m², Kochnische, Bad m. WC, Badewanne, Ost-Balkon, Kellerabteil

Wohnung mit Stellplatz: 115.000,00 €

Baujahr: 1973

Vermittlungsgebühr: 1 % des Kaufpreises zzgl. MwSt. (je vom Käufer und Verkäufer)

Hausgeld monatlich: z. Zt. € 196,00

Die Wohnung ist vermietet:

Nettomiete: € 350,00

Neben-/ Heizkosten: € 230,00

Bruttomiete: € 580,00

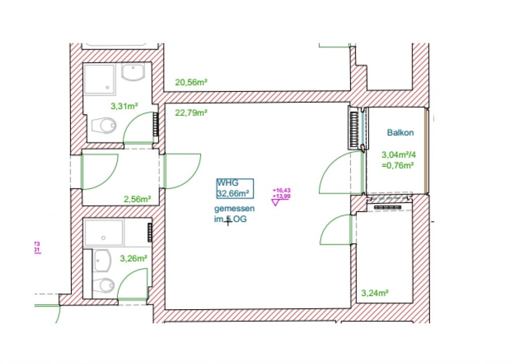
Eigentumswohnung mit Stellplatz zu verkaufen

Die Wohnung ist leer stehend.

Straße: Am Judenfeld 16, 4. OG

Größe: 1 Zimmer-Appartement, 33,20 m², Küche, Bad m. WC, Badewanne, W-Balkon, Kellerabteil

Wohnung mit Stellplatz: €100.000,00

Baujahr: 1973

Vermittlungsgebühr: 1 % des Kaufpreises zzgl. MwSt. (je vom Verkäufer und Käufer)

Hausgeld monatlich: z. Zt. €202,00

Eigentumswohnung mit Stellplatz zu verkaufen

Die Wohnung ist vermietet.

Straße: Schwabelweiser Weg 37, 1. OG

Größe: 1 Zimmer-Appartement, 35,74 m², Küche m. Fenster, Bad m. WC, Dusche, W-Balkon, Kellerabteil

Wohnung mit Stellplatz: €185.000,00

Baujahr: 1985

Die Wohnung wurde 2018 renoviert: Küche, Türen, Fußböden neu.

Vermittlungsgebühr: 1 % des Kaufpreises zzgl. MwSt. (je vom Käufer und Verkäufer)

Hausgeld monatlich: z. Zt. €224,00

Die Wohnung ist vermietet:

Nettomiete: €530,00

Neben-/Heizkosten: €120,00

Bruttomiete: €650,00

Eigentumswohnung zu verkaufen

Die Wohnung ist vermietet.

Straße: Loisachstraße 5, 2. OG

Größe: 1 Zimmer-Appartement, 27,20 m², Kochnische, Einbauküche neu, Bad m. WC u. Badewanne neu, S-Balkon, Kellerabteil

Wohnung: €127.000,00

Baujahr: 1973

Die Wohnung wurde 2015 renoviert: Türen, Fenster, Fußböden neu.

Vermittlungsgebühr: 1 % des Kaufpreises zzgl. MwSt. (je vom Käufer und Verkäufer)

Hausgeld monatlich: z. Zt. €112,00

Heizkosten monatlich: z. Zt. €78,55

Die Wohnung ist vermietet:

Nettomiete: €375,00

Neben-/Heizkosten: €120,00

Bruttomiete: €495,00

Eigentumswohnung zu verkaufen

Die Wohnung ist vermietet.

Straße: Amperstraße 2, 3.OG. rechts außen

Größe: 3 Zimmer-Wohnung, 77,42 m², Küche, Diele, Abstellraum, Bad m. Badewanne, WC, 2 Balkone (Wests.), Kellerabteil

Kaufpreis: €280.000,00

Baujahr: 1967

Vermittlungsgebühr: 1 % des Kaufpreises zzgl. MwSt. (je vom Käufer und Verkäufer)

Hausgeld monatlich: €209,22

Erhaltungsrücklage: €96,78

Vorauszahlung: €306,00

Heizkosten monatlich: z. Zt. €232,28 (Mitglied)
                                            z. Zt. €267,12 (Nichtmitglied)

Die Wohnung ist vermietet:

Nettomiete: €720,00

Neben-/Heizkosten: €338,28

Bruttomiete: €1.058,28

Eigentumswohnung zu verkaufen

Die Wohnung ist seit 01.03.2026 leerstehend.

Straße: Amperstraße 10, 1. OG links außen

Größe: 2-Zimmer-Wohnung, 54,19 qm, Diele, Abstellraum, Bad m. WC, Badewanne, 2 S-Balkone, Kellerabteil

Wohnung: 210.000,00 €

Baujahr: 1970

Vermittlungsgebühr: 1 % des Kaufpreises zzgl. MwSt. (je vom Käufer und Verkäufer)

Hausgeld monatlich: z. Zt. €264,00

Heizkosten monatlich: z. Zt. €159,88 (Mitglied),
                                                    €183,86 (Nichtmitglied)

Eigentumswohnung zu verkaufen

Die Wohnung ist vermietet.

Straße: Isarstraße 68, 11.OG. rechts 

Größe: 1 Zimmer-Appartement, 27,95 m², Kochnische, Bad m. WC, Kellerabteil, S-Balkon, Wohnung 2022 renoviert 

Kaufpreis: VB €130.000,00

Baujahr: 1972

Vermittlungsgebühr: 1 % des Kaufpreises zzgl. MwSt. (je vom Käufer und Verkäufer)

Hausgeld monatlich z. Zt.:  €156,71

Erhaltungsrücklage: €23,29

Vorauszahlung: €180,00

Heizkosten monatlich z. Zt.:  €88,79 (Mitglied)
                                                     €102,11 (Nichtmitglied)

Die Wohnung ist vermietet:

Bruttomiete: €565,00 (incl. Neben-/Heizkosten

Eigentumswohnung zu verkaufen

Die Wohnung ist vermietet.

Straße: Isarstraße 69, 6. OG

Größe: 3-Zimmer-Appartement, 84,55 m², Küche, Bad m. Badewanne, WC, Abstellkammer, Dielen, 2 Balkone (Nord und Süd), Kellerabteil, (Fußböden vo 3 Jahren erneuert; Küche, Bad, WC nicht renoviert)

Kaufpreis: ETW m. Stellplatz € 280.000,00                                                                  Tiefgaragenstellplatz € 15.000,00 

Baujahr: 1981

Vermittlungsgebühr: 1 % des Kaufpreises zzgl. MwSt. (je vom Käufer und Verkäufer)

Hausgeld monatlich z. Zt.:  € 325 für ETW und € 19 für TG 

Die Wohnung ist vermietet:

Nettomiete: € 850,00

Nebenkosten: € 380,00

Bruttomiete: € 1.230,00 + TG- u. Stellplatzmiete € 85,00